MENU

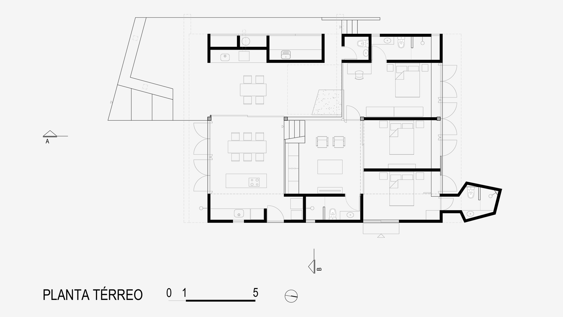
CASA MOA

Praia Grande do Bonete – Ubatuba
2026

Ficha técnica

Área Terreno

792m²

Área Construída

161m²

Arquitetura

João Paulo Daolio

Colaboradores

Kawani Yuri Nishimura
Sophia Krasilcic Minkoves

Estrutura

Trine Engenharia